Nice House 10 minutes walk to Slopes large 65" TV | House in Big Bear Lake

2 Bedroom House in Big Bear Lake
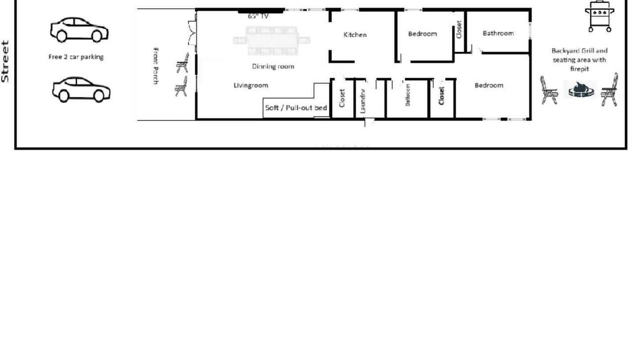
The whole group will enjoy easy access to everything from this centrally located place. nice houses, and 10 minutes walk to ski snow summit slope. You can also drive 3 minutes to lake or 3 minutes drive to village. You can also take the shuttle for the Bear Mountain Sloop. You can take the shuttel to slope or walk 10 minutes to snow summit. there are also bus stops at the cross street. very close to everything. right at summit. Step into a fully remodeled sanctuary of comfort and relaxation. The house has high-ceiling with recessed lights. Everything is brand new with nice paint, and brand new kitchen and bathroom cabinets. The living room features a 65-inch TV and a plush sofa that converts into a Queen bed for extra sleeping space. Each bedroom has its own TV for added comfort and relaxation. Kids can watch what they enjoy as you are enjoying your time after a nice day. The kitchen, with high ceilings, warm lighting, and a charming fireplace, is ideal for preparing meals. Enjoy dining at the table for six or relax at the coffee and tea bar. The main bedroom has an adjustable Sleep Number bed for personalized comfort, while the second bedroom offers a cozy queen bed. Both rooms are equipped with soft sheets and a variety of pillows for a restful night’s sleep. The bathrooms are elegantly designed, featuring double vanities and a spacious bathtub—perfect for a soothing soak after a day of activities. Step outside to relax by the cozy fire pit on cool nights or enjoy a leisurely BBQ with the grill. The outdoor space is thoughtfully set up for unwinding and stargazing, offering the perfect spot to relax and let your cares drift away. Your peaceful retreat is ready and waiting! Other things to note We’re committed to ensuring that your stay is not just comfortable but truly relaxing and enjoyable. Our goal is to make your time in Big Bear a memorable and special experience, one that feels like a home away from home. Whether you have questions about our cabin, need recommendations for local attractions, or just want to know more about the area, please don’t hesitate to reach out. We’re here to assist you and make sure every part of your stay is as delightful as possible. Your perfect getaway awaits, and we’re excited to help make it happen! For sleeping - Primary Bedroom - 1 Cal King, sleeps 2 2nd bedroom - queen, sleeps 2 living room - sofa bed Living room sofa bed - sofa is a pull out and has 1 queen size memory foam mattress on top, sleeps 2 maximum occupancy at any time is 5 == Are guests allowed to cook at the cabin? For sure, The kitchen is fully equipped with a full-size gas stove and oven and a large refrigerator, microwave. We tried to have as many kitchen items as possible, such as pots, pans, mixing bowls, plates, glassware, silverware, utensils, toaster, microwave, knives, mugs. You are also welcome to use the grill in back yard for BBG. Additionally, we have 3 sorts of coffee, Starbucks, Nescafe, and Armenian Coffee. Also black tea and mint tea. we hope you will enjoy. To give the most comfort, we provide white clean, linens, towels, and pillowcases provided. including extra blankets for the beds and a full set of towels for each guest. If you need more, just ask! Our cleaning crew prepares everything before your arrival and follows strict cleaning protocols to ensure the cabin is thoroughly cleaned after your stay. due to allergies, we have to ask pets to stay at home. If you're considering booking and need more information, feel free to contact us! full access to all 2 bedroom 2 bath house just for you Guests will have full access to the entire property, including the backyard, driveway, and front porch. Enjoy high-speed 600 Wi-Fi with a strong signal throughout the cabin. Each room features a Smart TV equipped with Roku and auto-logout capabilities, ensuring your personal data is securely removed after checkout. we aim to respond within one hour. if you have any questions please contact us, we try to reply within one hour. Reference #: TOT-2024-8594 5 minutes to ski resorts. Great walkable neighborhood clean and quiet. relax. enjoy. family time. 5 minutes to lake. Per City of Big Bear each reservation needs to sign the good neighbor policy, and have a valid photo ID. Reference #: TOT-2024-8594 visit Best Restaurants Near Big Bear Lake, Top 5 Ski Trails for Families,
Nice House 10 minutes walk to Slopes large 65" TV is located in Big Bear Lake. Nice House 10 minutes walk to Slopes large 65" TV provides accommodation, featuring Balcony/Terrace, Wellness Facilities, Fireplace/Heating, among other amenities. This House features Balcony/Terrace, Wellness Facilities, Fireplace/Heating, to make your stay a comfortable one.
Nice House 10 minutes walk to Slopes large 65" TV has 2 Bedrooms , 2 Bathrooms, and max occupancy of 5 people. The minimum rental for this property is 1 nights, but this can change depending on the season you plan on staying. Previous guests have rated it 2, and VRBO labeled it a top-rated House because of the excellent services rendered by the owner or manager of this House, and has consistently provided great experiences for their guests. Most families or guests that use it recommend it to their friends and some of them are repeat guests. House has a friendly neighborhood, and the Big Bear Lake has interesting places to visit. If you want to learn more about the House in Big Bear Lake, such as places to visit and things to do nearby, you can check below to learn more.
Amenities
Facility Overview
-
Heating
-
2 bathrooms
-
Bathtub or shower
-
Hair dryer
-
Bed sheets provided
-
2 bedrooms
-
Living room
-
Dining room
-
Fireplace
-
Stovetop
-
Refrigerator
-
Microwave
-
Cookware/dishes/utensils
-
Coffee/tea maker
-
Oven
-
Toaster
-
Dishwasher
-
Laundry facilities
-
Washing machine and dryer
-
Onsite parking
-
Wheelchair-accessible parking available
-
No pets allowed
-
4 stairs to reach property
-
Wheelchair-accessible parking
-
Handrails in stairways
-
2 on-site accessible parking spaces
-
Area rugs in public areas
-
If you have requests for specific accessibility needs, please contact the property using the information on the reservation confirmation received after booking.
-
Stairway handrail height (inches): 36
-
Smoke-free property
-
No elevators
-
Hardwood flooring in public areas
-
Smart TV
-
Pool or billiards table
-
At least 80% lighting from LEDs
-
Unit size: 1000 sq ft (93 sq m)
-
Recycling
-
Locally-owned & organized tours & activities
-
German
-
English
-
In the mountains
-
On the lake
-
Iron/ironing board
-
Safe
-
Free WiFi
-
Porch or lanai
-
Garden
-
Barbecue grill
-
First aid kit
-
Fire extinguisher
-
Carbon monoxide detector installed (host has indicated there is a carbon monoxide detector on the property)
-
Smoke detector installed (host has indicated there is a smoke detector on the property)
-
Ski-in/ski-out access
Policies
Extra-person charges may apply and vary depending on property policy government-issued photo identification and a credit card, debit card, or cash deposit may be required at check-in for incidental charges host has indicated there is a carbon monoxide detector on the property host has indicated there is a smoke detector on the property onsite parties or group events are strictly prohibited property registration number 2024-1489 safety features at this property include a fire extinguisher and a first aid kit special requests are subject to availability upon check-in and may incur additional charges; special requests cannot be guaranteed this property has outdoor spaces, such as balconies, patios, terraces which may not be suitable for children; if you have concerns, we recommend contacting the property prior to your arrival to confirm they can accommodate you in a suitable room this property is managed through our partner, vrbo. you will receive an email from vrbo with a link to a vrbo account, where you can change or cancel your reservation